 |
| Автор |
Сообщение |
|
Precious
|
Заголовок сообщения: Re: Что день грядущий нам готовит - опять про Фен Шуй! Добавлено: 23 ноя 2011, 14:49 |
|
Зарегистрирован: 09 окт 2005, 17:46 Сообщения: 2477 Откуда: Та же Л., вид в профиль ;-)
|
|
a
_________________ Сдержал слово - молодец А ведь могло и вырваться Если вы спорите с идиотом, подумайте, быть может он делает то же самое
|
|
 |
|
 |
|
Silver Bullet
|
Заголовок сообщения: Re: Что день грядущий нам готовит - опять про Фен Шуй! Добавлено: 23 ноя 2011, 15:41 |
|
Зарегистрирован: 30 авг 2008, 19:46 Сообщения: 7665 Откуда: A.K.A. Черри Три
|
Precious писал(а): Silver Bullet писал(а): Если на кухне не едим то берем горную. Едим, там, где « breakfast room» на плане. (« breakfast room» самое активное место, просто там удобный длинный стол на котором удобно сразу всем тусить, и там же скретер с компом. 2 компа в этой эрии) Еще могу легко перенести прием пищи в зал. Там тоже есть условия для этого. У вас в зале и в брекф. рум одна комбинация. Но если вы в зале тусуетесь все время значит там 7 будет работать. Это звезда не очень. Но ты же понимаешь, что может такое быть что конкретно твоему мужу нормально. Может ему по Базцы металл нужен и от уживается с 7. 7-ка также очень любит всякую музыку, песни - телевизор любит.
Цитата: Туда приходит годовая 3 (Синим с жирной стрелкой). Провоцирует ссоры, раздражительность. Может сон ухудшиться. Можно ли как то осторожно погасить тройку? Купи красное постельное белье. Оно 3-истощит. Попробуй.Цитата: В гостиной самая лучшая комбинация 8-8. Там нужно тусоваться как можно больше! Если есть камин то можно жечь, он активизирует 8. Плюс еще туда приходит 8 годовая. Это супер вообще. Туда бы спать! Камин есть. Велотренажер там есть, может еще как то поддержать 8ку, чтоб щастье не проворонить? туда если перенесете всю семейную активность, телик, диван - это будет самое то. Цитата: На входе и в столовой у меня получается водная 4. цветки все убрать! Такой мощный посыл романтики в спальне и на входе надо обуздать. Особенно как настанет весна. Вход прямо на Мао -кролике. Будет появляться именно такое желание, причем очень возможно что захочется делать это на стороне. Я вот водный обьект посоветовала ставить перед домом, но даже не знаю теперь. Надо по формуле выводить с таким Мао. А то можно так наактивизировать не то что нужно. Я думаю, что целесообразно мне 4ку на входе чуть погосить. Успех в учебе очень нужен, конечно, особенно сейчас, но спокойствие в доме очень важно. Чем мне приглушить эту 4ку? Может венок какой? Лучше всего не гасить, а просто не возбуждать ее. Посмотри себе второй этаж и в этом секторе ребенку поставь 4 кисточки в стакане. Если у тебя на втором этаже есть спальня - дите туда переселяй.Цитата: В т.н. зале надо решить какая звезда активная. Если это типа как "библиотека-кабинет" то 9 (благоприятно), а если дети там играют то 7 (неблагоприятно). Там в основном муж телек смотрит. Ребенок завтрак есть перед школой, играет. Но я могу игры перенести в гостиную, с телевизором сложнее, но бешенной собаке 8 миль - не крюк Цитата: Ничего толкового посоветовать не могу, разве только что соль везде расставить. Или не готовить. Ходите в рестораны как можно чаще. Деньги на это будут. А будете готовить, то не будет. Но это грубо говоря. Значит соль в сосуде и с монетами, так? Можно прям несколько сосудов? Например, у печки? Как то так? Ты, знаешь, по кухне я тебе не скажу - самое важное это куда смотрит плита ручками. Положение плиты рассчитывают по формуле Сань Юань, а я формул не знаю. Плюс еще к тому ее и по Бацзы ориентируют. Но я скажу так, что первое что смотрит мастер по ФШ, это расположение кровати и плиты. Но соль ставь - better safe than sorry У меня плита стоит фигово у самой (правда комбинация звезд) получше Но я на кухню захожу только воды попить. Поэтому могу 100% подтвердить, если на кухне не готовишь, то оно и не влияет.
Цитата: Гараж не рассматриваем, так как там все время не находимся. Гараж у нас активный, там муж качается 3 раза в неделю, под громкую музыку, ребенок рассекает иногда на велике… В гараже водная 9-ка - приходит 7, добавить воды надо в каком то виде. Синее что нибуть.
|
|
 |
|
 |
|
Silver Bullet
|
Заголовок сообщения: Re: Что день грядущий нам готовит - опять про Фен Шуй! Добавлено: 23 ноя 2011, 15:54 |
|
Зарегистрирован: 30 авг 2008, 19:46 Сообщения: 7665 Откуда: A.K.A. Черри Три
|
Precious писал(а): Silver Bullet писал(а): Я уже как доктор спрашиваю: ничего не беспокоит?  ... беспокоит нмного сын, а именно в учебе (полный провал и чуть в здоровье), а в остальном все так хорошо, что порой чихнуть боязно, что б не спугнуть ничго Но мы ж в прошло году фен-шуили в поте лица!  Вот еще, я так как юг в ванной, я его хотела поддержать и активировала (подсолнухи, орлы, треугольники, в прихожей.) у мужа по работе начались какие то притесняя и дало в здоровье всем. убрала активацию, и все выровнялось! даже не знаю, что там выстрелило с той активацией, но что то я задела! В ванной мог быть благородный твоего мужа или еще что. Такие ньюансы чтоб определить это надо изучать карту твоего дома и карты всех жильцов досконально. Хорошо что убала. Вообще если меняете что по ФШ, то смотрите что происходит. Если вдруг что, то сразу убирайте. Тебе основной совет - сидеть в гостиной и избегать кухни. В зале\брекф. нук тоже неважно если его использовать как кухню. 9-ка там где готовят нежелательна. Но это лучше чем 2-5. Если заметишь что какие то неприятности начались ни с того ни с сего, то найди хорошего консультанта чтоб тебе именно выставили плиту. Потому что, я, например, хорошего варианта не вижу в той стороне дома по звездам. Вижу один вариант, но он включает небольшую перепланировку и то я не уверена. Это серьезное дело и надо подходить ответственно. Ты понимаешь, я могу глянуть на карту и сказать, что вот тут точно плохо, но я ж не мастер феншуй. Это как почти каждый может определить что это похоже на аппендицит - но ты ж такому человеку не доверишь делать операцию... 
|
|
 |
|
 |
|
Precious
|
Заголовок сообщения: Re: Что день грядущий нам готовит - опять про Фен Шуй! Добавлено: 23 ноя 2011, 17:54 |
|
Зарегистрирован: 09 окт 2005, 17:46 Сообщения: 2477 Откуда: Та же Л., вид в профиль ;-)
|
|
a
_________________ Сдержал слово - молодец А ведь могло и вырваться Если вы спорите с идиотом, подумайте, быть может он делает то же самое
|
|
 |
|
 |
|
pink_ice_cream
|
Заголовок сообщения: Re: Что день грядущий нам готовит - опять про Фен Шуй! Добавлено: 23 ноя 2011, 18:02 |
|
 |
| Богиня |
 |
|
|
Зарегистрирован: 23 июн 2007, 11:20 Сообщения: 434
|
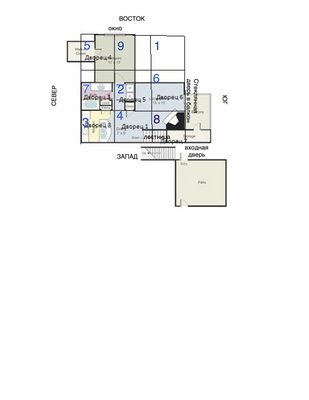
Девочки подожите, я совсем чайник, еле за вами успеваю  Мерила снаружи лицом к двери, правильно? Получилось вот.
| Вложения: |

FSH.jpg [ 350.46 КБ | Просмотров: 1664 ]
|
|
|
 |
|
 |
|
pink_ice_cream
|
Заголовок сообщения: Re: Что день грядущий нам готовит - опять про Фен Шуй! Добавлено: 23 ноя 2011, 18:05 |
|
 |
| Богиня |
 |
|
|
Зарегистрирован: 23 июн 2007, 11:20 Сообщения: 434
|
|
eshe
| Вложения: |

Untitled 2.jpg [ 69.14 КБ | Просмотров: 1654 ]
|
|
|
 |
|
 |
|
pink_ice_cream
|
Заголовок сообщения: Re: Что день грядущий нам готовит - опять про Фен Шуй! Добавлено: 23 ноя 2011, 18:49 |
|
 |
| Богиня |
 |
|
|
Зарегистрирован: 23 июн 2007, 11:20 Сообщения: 434
|
Сижу думаю, может мне входной дверь надо считать дверь балкона (большая, стеклянная )? Входная дверь у меня в низу, дальше по лестнице в верх. Получается на первом этаже только патио и входная дверь. Пулечка, что мне наактивировать, чтобы дочка росла счастливой и здоровой, бизнес хорошо процветал и шоб бывшый напроч забыл обо мне? 
|
|
 |
|
 |
|
Precious
|
Заголовок сообщения: Re: Что день грядущий нам готовит - опять про Фен Шуй! Добавлено: 23 ноя 2011, 21:25 |
|
Зарегистрирован: 09 окт 2005, 17:46 Сообщения: 2477 Откуда: Та же Л., вид в профиль ;-)
|
|
a
_________________ Сдержал слово - молодец А ведь могло и вырваться Если вы спорите с идиотом, подумайте, быть может он делает то же самое
|
|
 |
|
 |
|
Silver Bullet
|
Заголовок сообщения: Re: Что день грядущий нам готовит - опять про Фен Шуй! Добавлено: 24 ноя 2011, 07:13 |
|
Зарегистрирован: 30 авг 2008, 19:46 Сообщения: 7665 Откуда: A.K.A. Черри Три
|
pink_ice_cream писал(а): Сижу думаю, может мне входной дверь надо считать дверь балкона (большая, стеклянная )? Входная дверь у меня в низу, дальше по лестнице в верх. Получается на первом этаже только патио и входная дверь. Пулечка, что мне наактивировать, чтобы дочка росла счастливой и здоровой, бизнес хорошо процветал и шоб бывшый напроч забыл обо мне?  Мерить надо вход в здание ваше. Тут много мнений и мастера даже спорят по этому поводу. Один считает что дверь в пдьезд, другой что дверь в квартиру. И оба уважаемые. В частном доме легче, а вот в апартаментах тут можно запутаться. В наших советских домах меряют вообще дверь подьезда. Так что меряйте вход на патио если это ваш личный отдельный вход.
|
|
 |
|
 |
|
Silver Bullet
|
Заголовок сообщения: Re: Что день грядущий нам готовит - опять про Фен Шуй! Добавлено: 24 ноя 2011, 07:28 |
|
Зарегистрирован: 30 авг 2008, 19:46 Сообщения: 7665 Откуда: A.K.A. Черри Три
|
Цитата: Пуль, ты, конечно, можешь считать себя не специалистом, но мне твои советы, ты себе не представляешь даже, КАК в руку! Например, наши компы буду переставлять гостиную, потусим там годик. Спасибо конечно за комплеман. В основном соблюдение простых правил уже улучшает ФШ. Я кстати глянула на твой план опять с утра и не пойму почему я впихнула 3-4 в столовую. На фасаде, да 3-4 (поэтому для входа все то что я написала в силе) , но поскольку восточный дворец отсутсвует из за гаража, то в столовой наверно будет 1-6 из ценрального дворца. Не знаю даже чего мне в голову стукнуло! Вот так и доверяй написаннному на форуме...  ... доверяй но проверяй! Некоторые говорят что Центр. Дворец не работает, но в этом случае там окно, поэтому наверно все же работает. А если даже нет, то тода там 88 замещают. Еще лучше. 1-6 это очень хорошая комбинация. Для кухни идеально (3-4 тоже хорошо) - поэтому твой гриль туда однозначно пойдет. Я Бацзы мужа с другого компа гляну, а то у меня тут экран маленький - неудобно смотреть на картинку и писать. По базцы вообще можно многое увидеть. Там еще есть символические звезды, дворцы, периоды удачи. Рассмотрение карты может ответить на многие вопросы и поможен настроить свою жизнь более эффективно. Хороший специалист по Бацзы может очень хорошо помочь разобраться что стоит делать, а что нет. Я попозже напишу побольше по Бацзы.
|
|
 |
|
 |
|
Silver Bullet
|
Заголовок сообщения: Re: Что день грядущий нам готовит - опять про Фен Шуй! Добавлено: 24 ноя 2011, 07:48 |
|
Зарегистрирован: 30 авг 2008, 19:46 Сообщения: 7665 Откуда: A.K.A. Черри Три
|
Цитата: Пуль, а как найти в своей эрии консультатни по фен-шуй, не шарлатана? Я по интернету ищу. А как еще надешь? Но я лично в своем городе ничего толкового не нашла. Зашла на пару сайтов, почитала...Думаю...мда-а.... Как только читаете про всякие талисманы, жабы, будды, свитки и проч., зоны богатства, карьеры, карту желаний - отбрасывайте. Если читатете что мол "присылайте план квартиры по емейлу, все чики-пики" - тоже фигня. Настоящий мастер должен приехать посмотреть. И померять вживую компасом. Я, честно говоря, пользуюсь услугами консультантов из России.  ...Они хоть и неохотно но консультирут онлайн, при условии что меряешь сама на свой страх и риск. И мне с ними общаться легче - я же термины лучше знаю на русском. Есть еще один ньюанс. Традиционно мастера с востока все рассказывают устно. А наши пишут в виде отчета. Даже если что пропустил и не врубился, то можно почитать снова. А на словах, ну что - рассказали. Там забыл, там не расслышал, там перепутал.... Бацзы можно онлайн без проблем консультировать, хотя тоже лучше видеть человека. Но сейчас Скайп есть, т.ч. не проблема. Я вам открою большой секрет. Я долго ФШ делала сама и у меня все получалось. Но когда у меня дела пошли очень хорошо, то я стала с осторожностью относиться к своей самодеятельности, после одного случая, когда я нечаянно активизировала одну нехорошую весчь. Думаю так, коль уже удача пришла и уселась у меня во дворе, значит главное не спугнуть. Поэтому я обратилась к профессионалам. Но не с вопросом как мне заработать больше денег, а с вопросом - как мне то что есть сохранить!  ....Оказалось что если подойти по умному, то можно не только сохранить, но и приумножить. Поэтому, я считаю так - ФШ можно и нужно начинать делать самому. Если видите что дело пошло и пошло хорошо, значит попали правильно! Теперь вопрос чтоб не напортачить ничего. Значит либо надо идти учиться на курсы по ФШ, либо обращаться к мастеру. Мне лично учеба не подходит, т.к. у меня времени нет, да и не выгодно мне. 
|
|
 |
|
 |
|
Silver Bullet
|
Заголовок сообщения: Re: Что день грядущий нам готовит - опять про Фен Шуй! Добавлено: 24 ноя 2011, 08:27 |
|
Зарегистрирован: 30 авг 2008, 19:46 Сообщения: 7665 Откуда: A.K.A. Черри Три
|
pink_ice_cream писал(а): Сижу думаю, может мне входной дверь надо считать дверь балкона (большая, стеклянная )? Входная дверь у меня в низу, дальше по лестнице в верх. Получается на первом этаже только патио и входная дверь. Пулечка, что мне наактивировать, чтобы дочка росла счастливой и здоровой, бизнес хорошо процветал и шоб бывшый напроч забыл обо мне?  применяй ФШ  ...какой фейсинг получился? Запад-1 судя по картинке, да?
|
|
 |
|
 |
|
pink_ice_cream
|
Заголовок сообщения: Re: Что день грядущий нам готовит - опять про Фен Шуй! Добавлено: 24 ноя 2011, 15:11 |
|
 |
| Богиня |
 |
|
|
Зарегистрирован: 23 июн 2007, 11:20 Сообщения: 434
|
Silver Bullet писал(а): pink_ice_cream писал(а): Сижу думаю, может мне входной дверь надо считать дверь балкона (большая, стеклянная )? Входная дверь у меня в низу, дальше по лестнице в верх. Получается на первом этаже только патио и входная дверь. Пулечка, что мне наактивировать, чтобы дочка росла счастливой и здоровой, бизнес хорошо процветал и шоб бывшый напроч забыл обо мне?  применяй ФШ  ...какой фейсинг получился? Запад-1 судя по картинке, да? Да, Запад-1. Вход на патио точно такой жe.
|
|
 |
|
 |
|
Silver Bullet
|
Заголовок сообщения: Re: Что день грядущий нам готовит - опять про Фен Шуй! Добавлено: 24 ноя 2011, 15:18 |
|
Зарегистрирован: 30 авг 2008, 19:46 Сообщения: 7665 Откуда: A.K.A. Черри Три
|
Если дверь с патио смотрит на Запад 1, то получается что и окно спальни смотрит на Запад 1. А на самой первой картинке было написано Восток с той стороны. Посмотри еще раз внимательно на мои закорючки и скажи так или нет.  там где стоит 5 и ? у меня, судя по твоим данным будет ЮВ.
|
|
 |
|
 |
|
pink_ice_cream
|
Заголовок сообщения: Re: Что день грядущий нам готовит - опять про Фен Шуй! Добавлено: 24 ноя 2011, 22:01 |
|
 |
| Богиня |
 |
|
|
Зарегистрирован: 23 июн 2007, 11:20 Сообщения: 434
|
|
Пулечка, вхожу в дверь с Востока на Запад, мерила стоя лицом к двери снаружи, правильно?
|
|
 |
|
 |
|
Кто сейчас на конференции
Сейчас этот форум просматривают: нет зарегистрированных пользователей и гости: 26 |
| |
|
|
Вы не можете начинать темы Вы не можете отвечать на сообщения Вы не можете редактировать свои сообщения Вы не можете удалять свои сообщения Вы не можете добавлять вложения
|
|
|